2020 Prevost H3-45
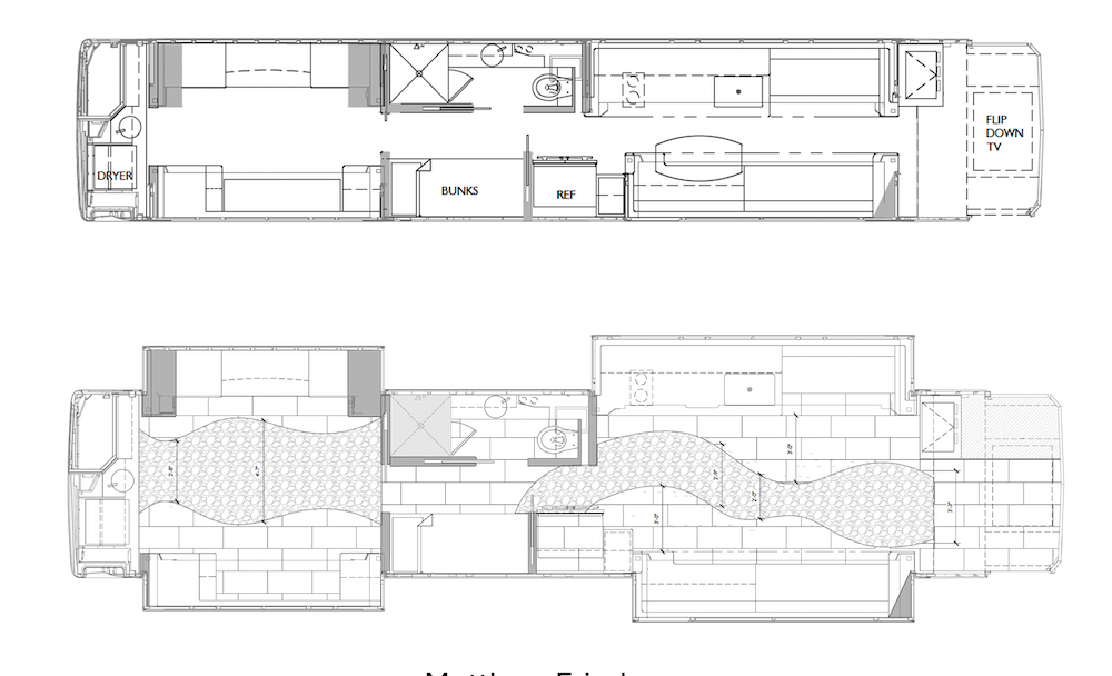
Quad Slide Bunk Coach
$ 1,300,000
45,000 Miles
Quad Slide with Bus Air (One of a Kind)
Chassis:
Volvo Main Engine Serviced In April 2025
Engine Batteries Replaced October 2025
Gen Service Performed At 562 Hours
New Updated Prevost Headlights
Adaptive Cruise Control
Bus Front Surface Protected With 3M Clear Film
Brigade 360 Camera System With 7-Day DVR Recording
Total Vision Swivel Rear Camera
Lutron Dimming Patio Lights On Both Sides And Rear
4 Individually Controlled Zip Dee Awnings
Removeable Black Mesh Sunshade Covering Front And Forward Side Windows
Valid Automatic Level Control
Electrical:
Volta Lithium-Ion Battery System With Main Engine Alternator Charging
12.5 KW Cummins Onan Auto Start Generator
2 Victron Quattro Inverters
Glendinning Retracting Shore Cord On Driver Side
Curbside Shore Power Inlet
Bay Storage:
Side Swinging Bay Doors Allowing Access To TV And Grill
Alfresco 36” Gas Grill On Electric Powered Slide
Custom Flagpole Stowage In Bay
Removeable Heavy Duty Flagpole Mount On Trailer Hitch
7 Custom Zip Dee Folding Chairs
Large Trash Receptacle In Bay
AV And Lighting Systems:
Shrimpwifi Powered Dual Modem Peplink BR2 Pro 5G System With Starlink FHP
55-Inch Drop-Down 4K LG HD Television Above Driver Area
32” 4K LG HD Front Slide Mounted TV
65” Samsung 4K OLED Bay TV On Custom Mount
Crestron AV Control System
6 Sonos Amplifiers Powering Three Zones
12 Klipsch Speakers
Sonos Sound Bar Mounted On Bay Tv
All Lighting, Electric Shades, Heat & Air, Pocket Doors Controlled By Firefly Control Screens
RGB Color Accent Lighting On Ceiling, Floor And Windows
Bedroom:
Queen Size Murphy BedÂ
3 72” Bunk Beds Mid Cabin With Individual Lighting And Ventilation
Spacious Closets And Drawers
Two Pneumatic Privacy Doors At Gally And Bedroom Entrances
55-Inch 4K LG HD Television In Bedroom
Galley:
Genuine Marble Floors With Custom Water-Jet Design
Solid Quartz Countertops Throughout
Fisher & Paykel Convection Microwave Oven
Fisher &Paykel Cooling Drawer
Fisher & Paykel Flush Mounted Full Refrigerator And Freezer
Galley Trash Shoot To Bay Receptacle
Full Size LG HD Television In Bedroom
Faux Fireplace Unit In Bedroom
Salon:
Two Foldout Sleeper Couches In Main Salon
L Shaped Booth With Custom Folding Table
Built In Cup Holders
Conveniently Placed Outlets
Storage Drawers With Dyson Vacuum System Below Couches
Driver:
Knoedler Heated And Cooled Driver Seat
Villa Furniture Heated Buddy Seat
Pneumatic Step Cover
Mounted Ipad On Dash
AC And Heating Systems:
5 Dometic Roof Heat And Air Units
Prevost Bus Air
2 Electric Toe Board Heaters
Electric Heated Floors
Water Systems:
Headhunter Plumbing System With Royal Flush Toilet
Headhunter Water Pump
5 Gallon Water Heater
180 Gallon Fresh Water Tank
180 Gallon Grey/Black Water Tank
Grey Water Bypass Valve
Combination Washer-Dryer Unit In Bedroom Closet
Convenient Grey/Black Dump Outlets On Both Sides Of Coach
Convenient Freshwater Fill On Both Sides Of Coach
For Additional Information Please Contact :
Matthew at 615-714-9733 or Email














For Additional Information Please Contact :
Matthew at 615-714-9733 or Email